某新建工程,建筑面积15000m2,地下二层,地上五层,钢筋混凝土框架结构,800mm厚钢筋混凝土筏板基础,建筑总高20m。建设单位与某施工
2022-02-04 17:58 佛山人事考试网 来源:广东华图教育
简答题某新建工程,建筑面积15000m2,地下二层,地上五层,钢筋混凝土框架结构,800mm厚钢筋混凝土筏板基础,建筑总高20m。建设单位与某施工总承包单位签订了总承包合同。
施工总承包单位将建设工程的基坑工程分包给了建设单位指定的专业分包单位。
施工总承包单位项目经理部成立了安全生产领导小组,并配备了3名土建类专职安全员。项目经理部对现场的施工安全危险源进行了分辨识别,编制了项目现场防汛应急救援预案,按规定履行了审批手续,并要求专业分包单位按照应急救援预案进行一次应急演练。专业分包单位以没有配备相应救援器材和难以现场演练为由拒绝。总承包单位要求专业分包单位根据国家和行业相关规定进行整改。
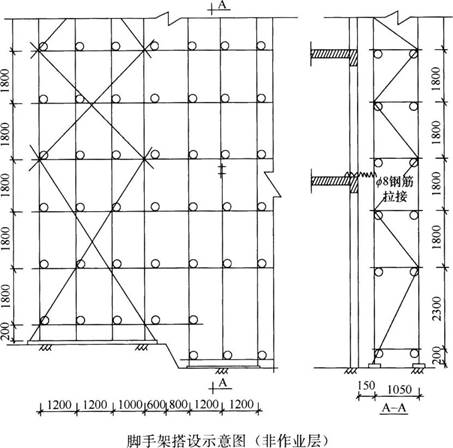
外装修施工时,施工单位搭设了扣件式钢管脚手架(如下图所示)。架体搭设完成后,进行了验收检查,提出了整改意见。

项目经理组织参建各方人员进行高处作业专项安全检查。检查内容包括安全帽、安全网、安全带、悬挑式物料钢平台等。监理工程师认为检查项目不全面,要求按照《建筑施工安全检查标准》JGJ 59—2011予以补充。
问题
1.本工程至少应配置几名专职安全员?根据《住房和城乡建设部关于印发建筑施工企业主要负责人、项目负责人和专职安全生产管理人员安全生产管理规定实施意见的通知》(建质[2015] 206号),项目经理部配置的专职安全员是否妥当?并说明理由。
2.对于施工总承包单位编制的防汛应急救援预案,专业分包单位应如何执行?
3.指出背景资料中脚手架搭设的错误之处。
4.按照《建筑施工安全检查标准》JGJ 59—2011,现场高处作业检查的项目还应补充哪些?
参考答案:暂无
[华图教育答案解析]: 1.本工程至少应配置2名专职安全员。
项目经理部配置安全员的做法:不妥当。
理由:还应配置机械类(或综合类)专职安全员。
2.专业分包单位应该按照应急救援预案要求建立应急救援组织(或配备应急救援人员),配备救援器材(设备),并定期进行应急演练。
对于难以进行现场演练的预案,可按照演练程序和内容采取室内桌牌式模拟演练。
3.外脚手架搭设构造中的错误有:
(1)局部步距过大(首步超过2000mm、或首步为2300ram);
(2)横杆不在节点处;
(3)横向扫地杆在纵向扫地杆上方;
(4)连墙件用钢筋拉接(不能采用软连接);
(5)连墙件竖向间距过大;
(6)立杆搭接;
(7)首步未设置连墙件;
(8)高低处水平杆延长跨度不够;
(9)剪刀撑宽度只有3跨(或小于6m);
(10)立杆底部悬空。
4.现场高处作业检查还应补充的检查项目有:临边防护、洞口防护、通道口防护、移动式操作平台、移动式梯子、悬空作业。
以上是关于某新建工程,建筑面积15000m2,地下二层,地上五层,钢筋混凝土框架结构,800mm厚钢筋混凝土筏板基础,建筑总高20m。建设单位与某施工的参考答案及解析。详细信息你可以登陆佛山公务员考试网。如有疑问,欢迎向华图教育企业知道提问。点击咨询>>>
知识点一点点得积累,那么作为解决问题来说,检验标准就是做题了。
做题演练,让知识点更加牢固,也可以在这知识点的海洋里自由地鱼跃。
不放过每次的实战!加油!
找考试题目使用:搜答案神器(https://foshan.huatu.com/tiku/)
特别说明:佛山华图题库系统旨在为考生提供高效的智能备考服务,全面覆盖公务员考试、事业单位、教师招聘、职业资格、医卫类、计算机类等领域。拥有优质丰富的学习资料和备考全阶段的高效服务,助您不断前行!关注佛山华图教育微信fshtjy,政策问题实时答,考试信息不漏看。
华图题库平台所收集的试题内容来源于互联网,仅供学习交流使用,不构成商业目的。版权归原作者所有,如涉及作品内容、版权和其它问题,请与我们取得联系,我们将在第一时间处理,维护您的合法权益。
(编辑:佛山华图)


